Építkezel? Felújítasz? A lakásodat rendezed be?
Ötlettár ikon

52 m2-es kislakások - képekkel - sok kékkel és zölddel

3 kislakás képeit (alaprajzzal) mutatjuk be alábbi sorozatban. Modern, néhol meglepő színek és formák, amiből láthatjuk: ízlések és pofonok különböznek!
A tervezők, a tulajdonosokkal egyeztetve készítették ezeket a lakásokat, többféle igényt, izlést kielégítő módon.
Több minimál berendezést találunk, sokan kedvelik.
Biztosan találunk benne megvalósitható ötleteket!

deLOHN Gillholmen Háromszemélyes kanapé
Prémium Kollekció

deLOHN Gillholmen Háromszemélyes kanapé

587 426 Ft
Minimál stilusban - nappali, fém asztallal és székekkel
Ablaknál munka, iroda
Konyhafal, abszolute minimál
Előszoba felé kitekintés
Bejárattól a nappali felé. Nagyméretű burkolatok, a falon tégla mintával
Ez a téglafal kissé megosztó lehet
Natúr tégla a hálóban
Fém konzolok a hálóban: gardrob
Minimál fürdőszoba
Első lakás alaprajza
Dolgozó
Különleges háttér a TV mögött
Kék burkolatú hálószoba - parafa ággyal
Tetszetős konyha méregzöldben
Hálószoba, egyszerű, de ötletes
Két hálófülke üvegfallal leválasztva
Különleges fürdőszoba
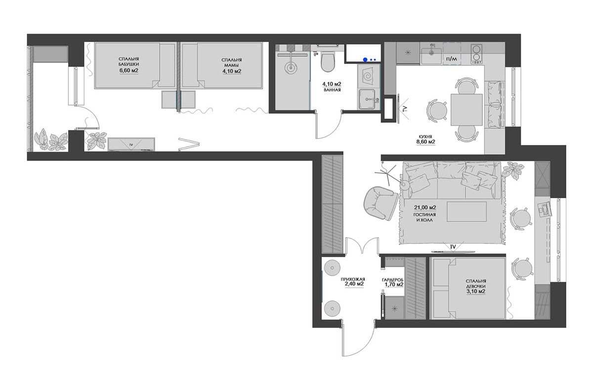
Második lakás alaprajza
Egyterű nappali konyha étkező

Forrás: Tovább az eredeti tartalomra →