Építkezel? Felújítasz? A lakásodat rendezed be?
Ötlettár ikon

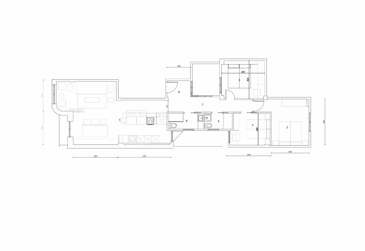
Tágas és világos – modern lakás karakterrel (alaprajzzal)

 | 

Ez a gyönyörűen felújított lakás a szabadság, a stílus és a kényelem tökéletes kombinációja. Világos fa, zsályazöld és mustársárga tónusok uralják a tereket, természetes, meleg hangulatot árasztva. A nagy nappali-étkező-konyha tér a lakás szíve, ahonnan egy hangulatos erkélyre léphetünk ki. A három hálószoba kényelmes és letisztult, a dekoráció pedig minden részletében laza eleganciát sugall.

deLOHN Sky Háromszemélyes kanapé
Prémium Kollekció

deLOHN Sky Háromszemélyes kanapé

304 114 Ft