Építkezel? Felújítasz? A lakásodat rendezed be?
Ötlettár ikon

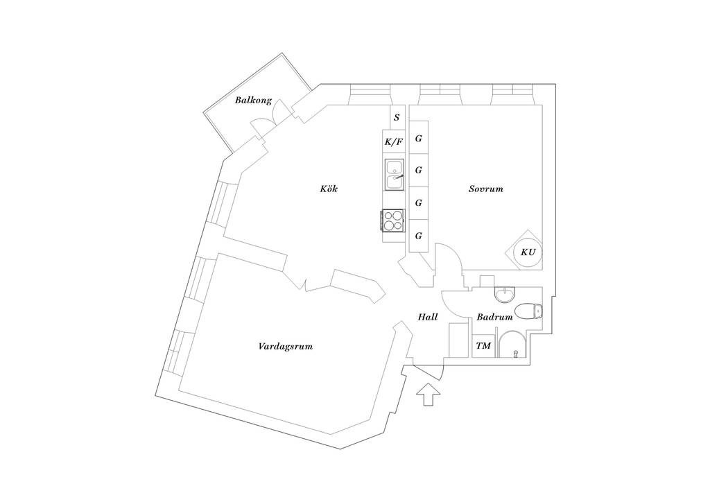
Gyönyörűen felújított, csillag alaprajzú, 80 nm-es, egy hálószobás lakás egy régi épületben

Nagy szakértelem szükséges ahhoz, hogy megőrizzük a régi idők báját és jellemzőit egy teljes körűen felújított lakásban, amely egy 1903-ban épült házban található. Ezt sikerült megvalósítani ebben a hatalmas, 80 m²-es lakásban, amely egy tágas nappaliból, konyhából és hálószobából áll, sőt még erkéllyel is rendelkezik. A ritkán használt csillag alakú alaprajza is figyelemre méltó, ami azt jelenti, hogy az összes helyiség az előszobából nyílik. A gyönyörű lakás dekorációjához választott színek lágyak és visszafogottak, kiemelve a gondos felújítás révén létrejött csodálatos tereket. A stukkók és a rozetta díszítések tisztelettel adóznak az épület gyökereinek.

deLOHN Dipp, Velvet Téglalap alakú étkezőgarnitúra
Prémium Kollekció

deLOHN Dipp, Velvet Téglalap alakú étkezőgarnitúra

345 719 Ft