Építkezel? Felújítasz? A lakásodat rendezed be?
Ötlettár ikon

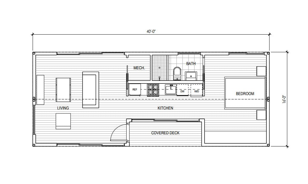
60 m2-es , - konténerházak mintájára készült egyedi ház, lakásnak vagy nyaralónak (alaprajzzal)

Ezt a 60 m2-es előregyártott építészházat a konténerházak ihlették.
Gordon Stott és Jared Levy építészek tervezték úgy hogy kihasználják az előre gyártott házak koncepcióját. A konténerház építészetének ihletésével olyan előre gyártott modulok rendszerét tervezték, amelyeket a világ bármely pontjára el lehet szállítani. A koncepció környezetbarát is, napelemek telepítésének lehetőségével és hatékony egyedi tisztítórendszerrel. Az itt bemutatott modell a legkisebb, kb. 60 m2-es, nappalival és egy hálószobával.
Végén alaprajz!

Termékek

Már 106 985 Ft-tól
Zöld erdős részre telepitett ház, különleges, de egyszerű belső kialakitással