Építkezel? Felújítasz? A lakásodat rendezed be?
Ötlettár ikon

Sötét színek és üde színfoltok loft hangulatban

Ez a lakás eredetileg csak 36 m2 volt, de sikerült hozzávásárolni a felette lévő padlásteret, így rögtön 70 m2-re nőtt az alapterület.
A tervező bátran használta a karakteres sötét színeket és az ipari hangulatot teremtő anyagokat. A komorságot az élénk sárga kiegészítőkkel sikerült elkerülni.
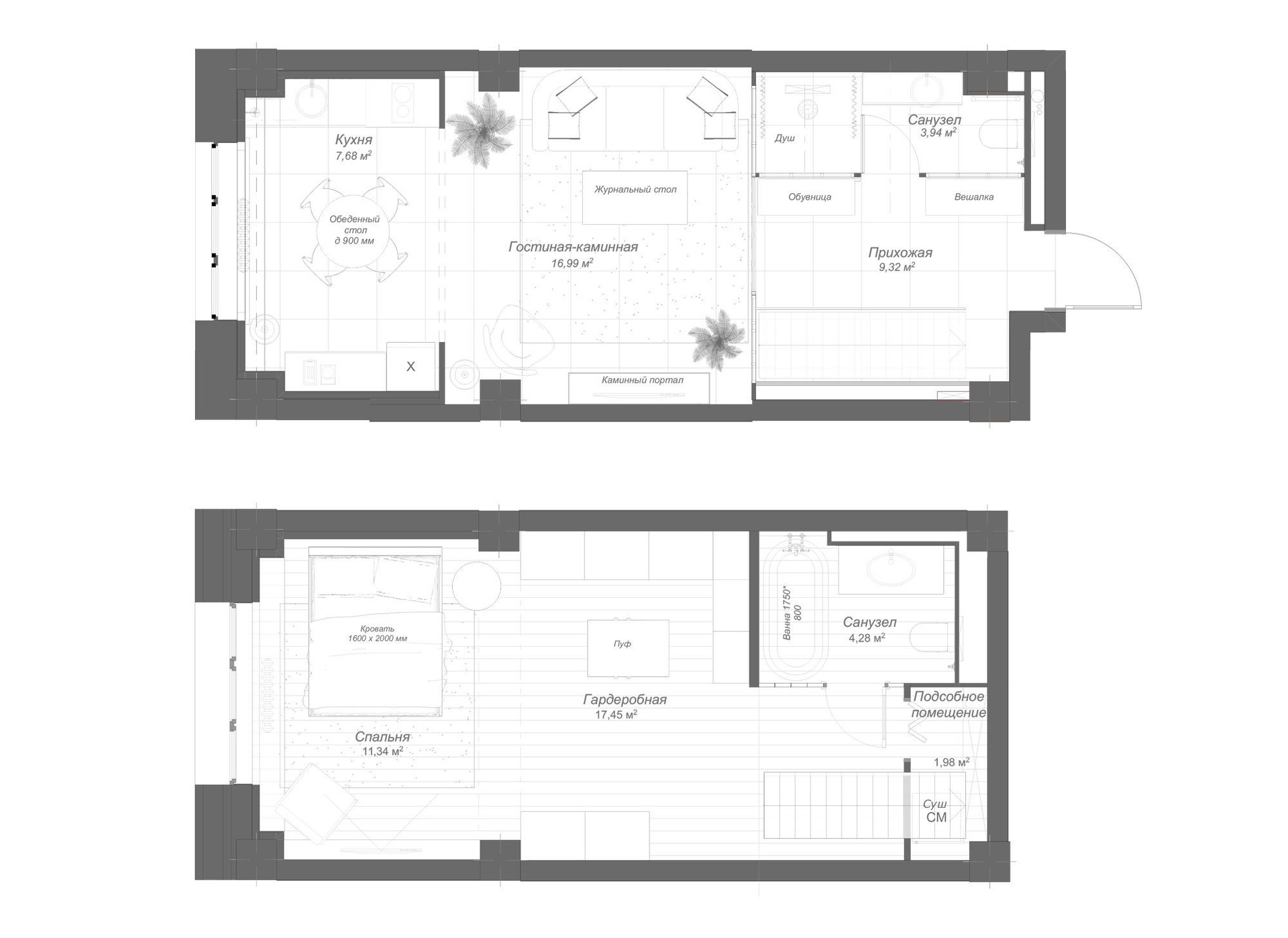
A képek után a berendezési alaprajz is megtalálható.

Termékek

Már 40 615 Ft-tól
A klasszikus vonalú, sárga hűtő megtöri az étkező drámai színeit és magához vonzza a tekintetet.
Azokban a helységekben, ahol sok a természetes fény, egyáltalán nem válik komorrá egy-egy sötét falszakasz.
Ez a boltív nem csak kijelöli a határt nappali és konyha között, de remek dísze is a térnek.
Manapság nagyon divatosak az gyertyakandallók. Anélkül csempészhetünk be velük romantikus hangulatot, hogy nagy kiadással vagy munkával járna. Válasszunk hozzá nyugodtan ütős színt, ha nem tetszik, elég egyszerűen átfesteni!
Az ipari hangulat megteremtésénél nem maradhat el az osztott üvegfal sem.
Talán szokatlan ekkora belmagasságnál sötétre festeni a mennyezetet, de az üde színek így is jó hangulatot teremtenek ebben az apró hálóban.
Pár jól megválasztott textil nem csak a kényelmet szolgálja, de egyben dekorálja is a szobát.
A fekete metrócsempe merész választás, de pont ugyanúgy illik a mintás járólaphoz, mint a fehér testvére. Egy kis sárga itt is feltűnik.

Forrás: Tovább az eredeti tartalomra →