Építkezel? Felújítasz? A lakásodat rendezed be?
Ötlettár ikon

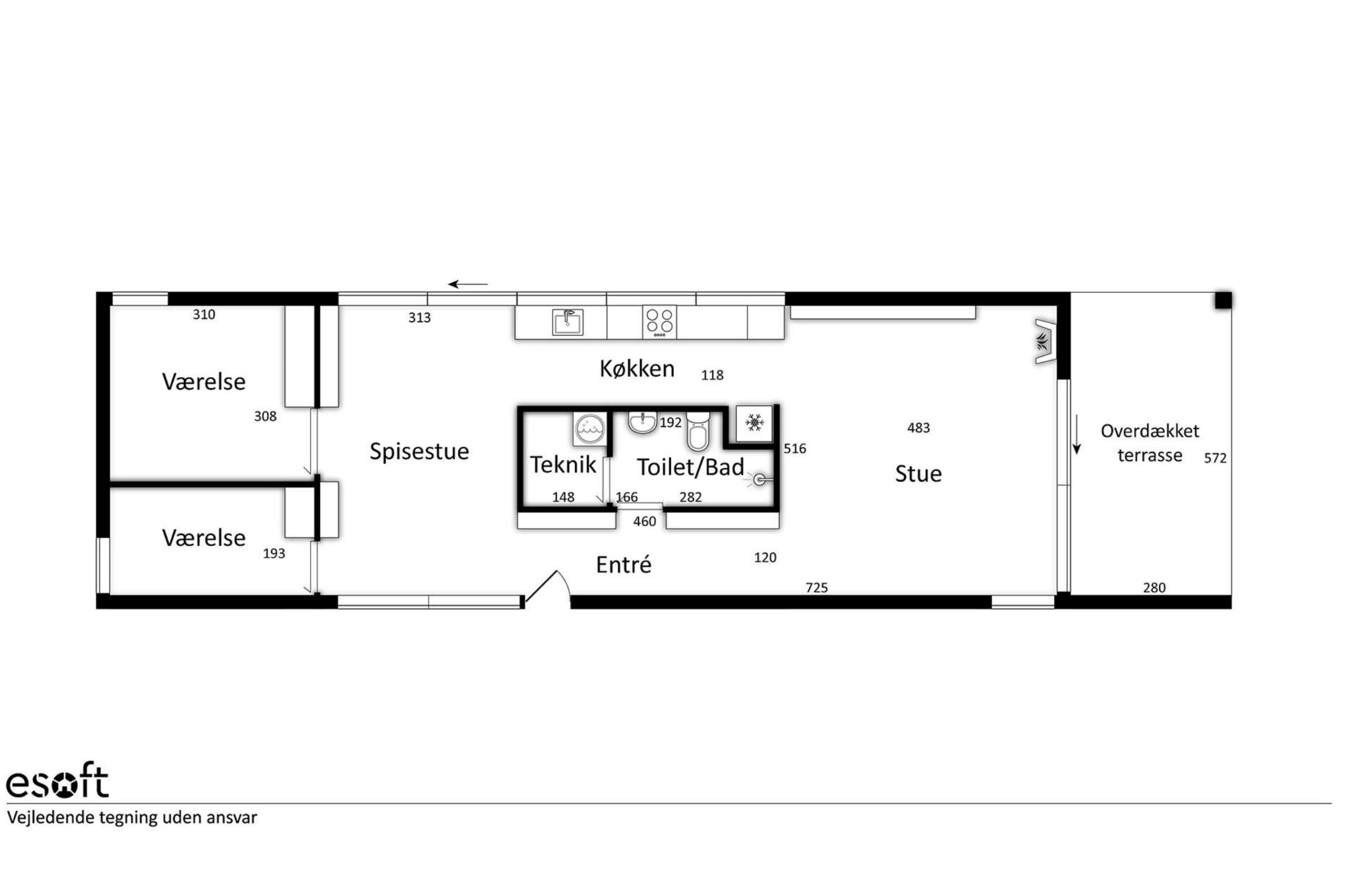
Otthon a vízen: 100 nm-es kikötői lakás minimalista stílusban (alaprajzzal)

Koppenhága kikötőjében található ez a vízen lebegő úszóház, amelyet a japán és a skandináv stílusok keveréke jellemez. A 100 nm-es minimalista belsőhöz egy 15 nm-es alapterületű fedett terasz is tartozik, ahonnan csodás kilátás nyílik a vízre. A szokatlan lakóhelyet a sallangmentesség jegyében terveztek meg. Mindenből csak a legszükségesebb bútorok és gépek kerültek be. Az alaprajz egy hosszú, beépített szekrényekkel tagolt folyosóból áll, ahonnan a hálóba és a nappaliba juthatunk, emellett egy gyerekszoba és egy rózsaszínben megálmodott fürdőszoba is része ennek a különleges otthonnak.

deLOHN Segelskären Háromszemélyes kanapé
Prémium Kollekció

deLOHN Segelskären Háromszemélyes kanapé

568 604 Ft