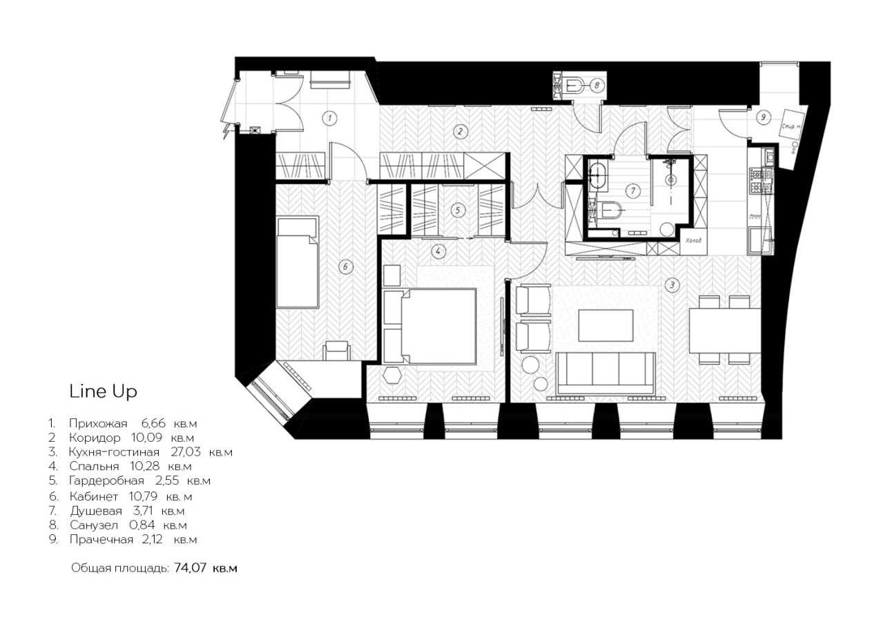
Ez a lakás remek példa arra, hogy hogyan tudunk egy kedvezőtlen alaprajzból megfelelő berendezéssel kellemes otthont varázsolni. Ugyanis a vizes blokk a lakás közepén helyezkedik el. Ebből kovácsoltak előnyt, azzal, hogy körbeépítették, így minden irányból hasznos funkciót kapott a tér.
A fürdőszoba nem csak központi helye miatt lett az egyik legizgalmasabb helyisége a lakásnak. A burkolatok és textúrák váltakozásával szeparáltak a különböző funkciókat, melyekből az összesnek helyet találtak a kis tér ellenére.

























